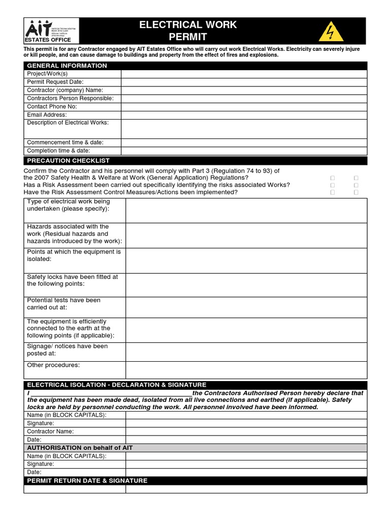
Permit To Work System

Permit To Work (PTW) atau Sistem Izin Kerja adalah prosedur formal tertulis yang wajib dilaksanakan sebelum memulai pekerjaan berisiko tinggi di fasilitas ketenagalistrikan. Sistem ini berfungsi untuk mengendalikan risiko, mencegah kecelakaan kerja, dan memastikan keselamatan personel serta keandalan sistem kelistrikan.

Pengertian, Prinsip Dasar, dan Ruang Lingkup

Permit To Work (PTW) atau Sistem Izin Kerja adalah prosedur pengendalian kerja berisiko tinggi yang bersifat formal, sistematis, dan terdokumentasi. Dalam konteks ketenagalistrikan—baik di pembangkit, transmisi, distribusi, maupun gardu induk—PTW adalah izin tertulis yang wajib diperoleh sebelum memulai pekerjaan pada peralatan bertegangan, pekerjaan di ketinggian, ruang terbatas, atau pekerjaan panas (seperti pengelasan). Izin ini memastikan bahwa semua bahaya telah diidentifikasi, dinilai, dan dikendalikan melalui tindakan pencegahan yang memadai.

Dua teknisi membahas dan menandatangani formulir izin kerja di lokasi kerja.

Prinsip dasar PTW mencakup komunikasi yang jelas, otorisasi dari personel yang kompeten, dan koordinasi antar disiplin (operasi, pemeliharaan, kontraktor). Sistem ini biasanya mencakup beberapa jenis izin spesifik, seperti: Hot Work Permit (izin kerja panas), Electrical Work Permit (izin kerja listrik), Confined Space Entry Permit (izin masuk ruang terbatas), dan Height Work Permit (izin kerja ketinggian). Setiap izin memiliki checklist persyaratan keselamatan yang harus dipenuhi sebelum pekerjaan dimulai.

Close-up tag lockout padlock dan izin kerja yang tergantung pada saklar listrik.

Implementasi PTW sangat krusial karena sifat bahaya listrik yang seringkali tidak terlihat (silent killer). Tanpa prosedur isolasi dan penguncian (Lock Out Tag Out / LOTO) yang diverifikasi melalui PTW, risiko tersengat listrik, busur api (arc flash), atau pemutusan pasokan listrik yang tidak direncanakan sangat tinggi. PTW memastikan bahwa peralatan telah dalam kondisi aman untuk dikerjakan, baik dalam keadaan mati (de-energized) maupun hidup (energized) dengan pengamanan ekstra.

Papan pengendali izin kerja di ruang kontrol dengan kartu status berwarna-warni.

Prosedur, Peran, dan Manfaat dalam Operasional Ketenagalistrikan

Prosedur PTW yang khas melibatkan beberapa tahap kunci: Permintaan (Request), Penerbitan (Issuing), Penerimaan (Acceptance), dan Penutupan (Closure/Cancellation). Pemohon (biasanya penyelia pekerjaan) mengajukan permintaan izin dengan menjelaskan ruang lingkup kerja, lokasi, dan personel yang terlibat. Petugas yang berwenang (Authorized Person/Issuing Authority)—seringkali dari bagian operasi—kemudian menilai risiko, memastikan isolasi energi telah dilakukan, dan menerbitkan izin setelah semua persyaratan dipenuhi.

Teknisi mengenakan APD lengkap sedang bekerja di panel listrik bertegangan tinggi.

Peran dan tanggung jawab dalam sistem PTW harus didefinisikan dengan jelas. Pemegang Izin (Permit Holder) bertanggung jawab atas pelaksanaan pekerjaan sesuai izin dan kondisi aman di lapangan. Petugas Penerbit Izin bertanggung jawab atas keamanan sistem secara keseluruhan dan memastikan isolasi yang benar. Seringkali, diperlukan pula petugas keselamatan (Safety Watch) untuk mengawasi pekerjaan berisiko sangat tinggi. Komunikasi dan serah terima izin saat pergantian shift juga merupakan elemen kritis.

Manfaat utama penerapan PTW di sektor ketenagalistrikan adalah pencegahan kecelakaan fatal dan gangguan operasi. Dengan mengontrol akses dan metode kerja, PTW melindungi pekerja dari sengatan listrik, ledakan busur api, atau jatuh dari ketinggian. Selain itu, sistem ini mencegah kesalahan manusia (human error) yang dapat menyebabkan pemadaman luas (blackout), kerusakan aset kritis seperti transformator atau pemutus daya (circuit breaker), dan gangguan pasokan listrik kepada pelanggan. Dengan demikian, PTW tidak hanya melindungi manusia, tetapi juga mendukung keandalan (reliability) dan keberlanjutan sistem kelistrikan nasional.

15 Kamus Lainnya

Automatic Voltage Regulator (AVR)

Automatic Voltage Regulator (AVR) adalah perangkat atau sistem yang secara otomatis menjaga tegangan listrik pada nilai yang stabil dan konstan.…

Baca Detail »

Black Start Capability

Black Start Capability adalah kemampuan pembangkit listrik untuk memulai operasi dan menghasilkan daya listrik tanpa bergantung pada sumber listrik eksternal…

Baca Detail »

Bus Differential Protection

Bus Differential Protection adalah skema proteksi utama yang melindungi busbar di gardu induk dan pembangkit listrik. Ia bekerja dengan membandingkan…

Baca Detail »

Distance Protection Relay

Distance Protection Relay adalah relai proteksi yang bekerja berdasarkan impedansi saluran untuk mendeteksi dan mengisolasi gangguan di sistem tenaga listrik.…

Baca Detail »

Generator Step Up Transformer (GSU)

Generator Step Up Transformer (GSU) adalah transformator daya berkapasitas besar yang berfungsi menaikkan tegangan listrik keluaran generator pembangkit (misalnya 15…

Baca Detail »

Governor Control System

Governor Control System adalah sistem kendali otomatis yang mengatur kecepatan putar dan daya keluaran turbin pada pembangkit listrik untuk menjaga…

Baca Detail »

Heat Rate Performance

Heat Rate adalah parameter efisiensi termal pembangkit listrik yang mengukur konsumsi energi panas (bahan bakar) untuk menghasilkan satu unit energi…

Baca Detail »

Isolated Phase Busduct (IPB)

Isolated Phase Busduct (IPB) adalah sistem konduktor berinsulasi gas yang dirancang untuk menyalurkan arus listrik sangat besar dari generator ke…

Baca Detail »

Non Spinning Reserve

Non-Spinning Reserve adalah kapasitas pembangkit listrik yang dapat disiapkan dan disinkronkan ke sistem dengan cepat (biasanya dalam 10-30 menit) untuk…

Baca Detail »

Power Factor Correction

Power Factor Correction (PFC) atau Koreksi Faktor Daya adalah teknik untuk meningkatkan faktor daya (cos φ) dengan mengurangi daya reaktif…

Baca Detail »

Reactive Power Compensation

Reactive Power Compensation adalah teknik untuk mengatur daya reaktif (VAR) dalam sistem kelistrikan guna meningkatkan stabilitas tegangan, efisiensi transmisi, dan…

Baca Detail »

Spinning Reserve Margin

Spinning Reserve Margin adalah kapasitas pembangkit listrik yang tersinkronisasi dengan sistem dan siap langsung digunakan untuk menanggapi fluktuasi beban atau…

Baca Detail »

Station Service Transformer (SST)

Station Service Transformer (SST) adalah trafo daya khusus yang menyediakan daya listrik untuk peralatan bantu (auxiliary) di dalam pembangkit listrik…

Baca Detail »

Unit Auxiliary Transformer (UAT)

Unit Auxiliary Transformer (UAT) adalah trafo khusus yang menyediakan daya listrik untuk peralatan bantu (auxiliary) di dalam pembangkit listrik atau…

Baca Detail »

PLTU

PLTU (Pembangkit Listrik Tenaga Uap) mengubah energi kimia bahan bakar (batu bara, gas, minyak) menjadi listrik melalui siklus Rankine. Bahan…

Baca Detail »

12 Pembangkit Utama Indonesia

PLTU Paiton

  • Probolinggo & Situbondo, Jawa Timur
  • 4608 MW
  • PT PLN Nusantara Power, PT Paiton Energy, PT Jawa…
  • Beroperasi
Detail »

PLTU Suralaya

  • Pulomerak, Cilegon, Banten
  • 3440 MW
  • PT Indonesia Power
  • Beroperasi
Detail »

PLTU Batang

  • Ujungnegoro, Kab. Batang, Jawa Tengah
  • 2000 MW
  • PT Bhimasena Power Indonesia
  • Beroperasi
Detail »

PLTU Jawa 7

  • Kab. Serang, Banten
  • 2100 MW
  • PT SGPJB (Shenhua Guohua Pembangkitan Jawa Bali)
  • Beroperasi
Detail »

PLTU Tanjung Jati B

  • Jepara, Jawa Tengah
  • 1320 MW
  • PT PLN Nusantara Power
  • Beroperasi
Detail »

PLTU Cirebon 1 (Jawa-1)

  • Desa Kanci, Kab. Cirebon, Jawa Barat
  • 660 MW
  • PT Cirebon Electric Power
  • Beroperasi
Detail »

PLTU Cirebon 2

  • Kab. Cirebon, Jawa Barat
  • 1000 MW
  • PT Cirebon Energi Prasarana
  • Beroperasi
Detail »

PLTU Sumsel-8 (Tanjung Lalang)

  • Desa Tanjung Lalang, Muara Enim, Sumatera Selatan
  • 1320 MW
  • PT Huadian Bukit Asam Power (HBAP)
  • Beroperasi
Detail »

PLTU Indramayu

  • Kab. Indramayu, Jawa Barat
  • 990 MW
  • PT PLN Nusantara Power
  • Beroperasi
Detail »

PLTU Rembang

  • Kab. Rembang, Jawa Tengah
  • 630 MW
  • PT PLN Nusantara Power
  • Beroperasi
Detail »

PLTU Tanjung Awar-Awar

  • Tuban, Jawa Timur
  • 700 MW
  • PT PLN Nusantara Power
  • Beroperasi
Detail »

PLTU Pacitan

  • Pacitan, Jawa Timur
  • 630 MW
  • PT PLN Nusantara Power
  • Beroperasi
Detail »

Artikel Terbaru

Tender Proyek Energi Terbarukan Indonesia: Panduan Lengkap

Tender Proyek Energi Terbarukan Indonesia: Panduan Lengkap

Pelajari tender proyek energi terbarukan Indonesia, syarat, izin, dan strategi menang tender sektor…

28 Apr 2026

Baca artikel »
Kebijakan Investasi Energi Pemerintah Indonesia Terbaru

Kebijakan Investasi Energi Pemerintah Indonesia Terbaru

Kebijakan investasi energi pemerintah Indonesia: arah, regulasi, peluang, dan dampaknya bagi pelaku…

27 Apr 2026

Baca artikel »
Peluang Investasi Energi Melalui Danantara

Peluang Investasi Energi Melalui Danantara

Peluang investasi energi melalui danantara, analisis potensi, regulasi, dan strategi masuk sektor k…

24 Apr 2026

Baca artikel »
Proyek Pembangkit Listrik Tenaga Sampah: Analisis

Proyek Pembangkit Listrik Tenaga Sampah: Analisis

Analisis proyek pembangkit listrik tenaga sampah: skema, regulasi, biaya, dan tantangan implementas…

23 Apr 2026

Baca artikel »
Investasi PLTSA Kota Besar: Peluang dan Risiko

Investasi PLTSA Kota Besar: Peluang dan Risiko

Analisis investasi PLTSA kota besar: peluang, regulasi, biaya, dan tantangan proyek energi berbasis…

23 Apr 2026

Baca artikel »
Proyek Energi Strategis Nasional: Panduan Lengkap

Proyek Energi Strategis Nasional: Panduan Lengkap

Panduan proyek energi strategis nasional: regulasi, perizinan, dan peluang usaha ketenagalistrikan …

22 Apr 2026

Baca artikel »